Kültéri komfort-wellness szaunaház építés
Ezúttal egy privát erdei birtokon engedhettük szabadon fantáziánkat, amiben az ügyfél is maximálisan partner volt.
A helyszíni bejárás során érzékeltük a telek adottságából fakadó energiákat és természeti adottságokat.
Több helyszín is felmerült a birtokon belül, de végül megtaláltuk az egyedi gyártású kültéri wellness szaunaház számára a legoptimálisabbat. A formai sajátosságok éppen ebből adódóan következnek. Mivel a kedvező tájolású terep felkínálta a szemközti dombok és növényzet látványát, így a szaunaház frontja edzett, hőszigetelt, panoráma üvegelemekből készült.
A védelem és a modern megjelenés érdekében egyedi korcolt bádogtetőt és rejtett csatornát alkalmaztunk, RAL 7016 színben.
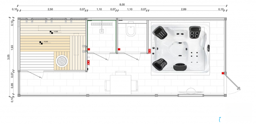
A belső térben kialakításra került még egy wc, zuhanyzó helység illetve a pihenőtérben a fő szerepet egy Villeroy & Boch Comfort line masszázsmedence kapta.
Beépítésre került még egy kombinált szauna egység finn, infra és Himálaja só terápia hármas hatásával.
A szaunázás lehet életforma, a mindennapok része, egyszerre kikapcsolódás és felfrissülés.
A szauna segít szervezetünknek megszabadulni a salakanyagoktól, hatékony immunrendszer-erősítő és érregeneráló hatású. A családban a hölgyek leginkább az infra szauna mély meleg hatásának segítségével történő méregtelenítést kedvelik kombinálva himalájai sóterápiával és a hangulatkeltő megvilágításával.
Az infra szaunában ügyelni kell arra, hogy a gerincoszlop koncentráltan kapja az infra sugárzást. Az ok igen egyszerű: a gerincoszlop a szervezet működésének irányító központja. A gerincoszlopot érő hő fellazítja az izmokat, oldja a stresszt, ingerli a vegetatív idegrendszer két oldalon futó végződéseit, ezen keresztül pedig az egyes belső szervek működését stimulálja így a leghatékonyabb a méregtelenítés.
Kültéri szauna, szaunaház projektnél sok szempontot kell mérlegelni, hogy megfeleljen a hosszú távú felhasználásnak és a család egyedi igényeinek egyaránt!
Egyénre szabott megoldásokat kínál Önnek az iSauna szauna manufaktúra. Keresse professzionális tanácsadó csapatunkat és tervezzük meg közösen álmai szaunaházát!
Az egyedi építésű iSauna komfort szaunaházak már okostelefon szauna vezérléssel együtt is rendelhetőek! A vezérléshez tartozó alkalmazás INGYENESEN letölthető az Apple AppStore és az Android Play Store áruházakból.
