Nová Lehota - Szlovákia ,
Saját wellnesskialakítás, teljes wellnessélmény otthon!

loading
Saját wellness
  • Saját wellness
  • otthoni wellness építés
  • privát wellness - Otthoni wellness
  • Wellness élmény
  • privát wellness
  • wellness készítés
  • wellness 2 D tervezés
  • otthoni wellness 3D teevezés

Otthoni wellness -  családi wellness élmény

 

Ki ne szeretne egy fárasztó, munkanap után saját szaunájában, wellnessében lazítani?

Ennél jobb kikapcsolódást bizony nehéz találni! Nem kell sem utazni, sem sorban állni, nem zavarhatja meg senki a privát nyugalmunkat.

Általában ez az egyik fő előny, mely miatt Ügyfeleink a privát szauna wellness után érdeklődnek nálunk.

Ebben a projektben is egy otthoni wellness teret kiviteleztünk. Ügyfelünk első körben egy kombinált szauna igénnyel keresett meg bennünket. Feleségével érkezett szauna gyártó üzemünkbe, hogy átbeszéljük a kombinált szauna részleteit. Beszélgetésünk során merült fel az az igényük, hogy ne csak egy szaunát építsünk, hanem egy komplex saját wellness helységet. A hely adott volt. Nyaralójukban éppen átépítésre került egy meglévő épület. Az épület által kínált gyönyörű panoráma tökéletesen megfelelt egy egyedi otthoni wellness kialakításához.

Tervező csapatunk neki is látott a feladatnak. Az ügyféllel karöltve meghatároztuk a wellness stílusát, mely a rusztikus, klasszikus, de a modern stílusjegyeket is viseli. Ezzel a kombinációval és a természetes fa használatával sikerült megalkotnunk az ügyfelünk által kedvelt meleg, természetközeli hatást. Tudatosan, lépésről-lépésre megtervezésre került egy minden igényt kielégítő otthoni wellness.

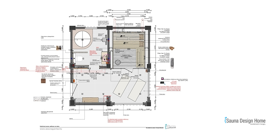
 A tervezést követően jöhetett a minőségi kivitelezés.  Az otthoni wellness három részre lett felbontva. A wellness helységen belül helyet kapott egy exkluzív kombinált szauna, fürdőszoba-merülődézsával- zuhanyzóval, wc-vel. Kialakításra került még egy Led világítással ellátott dizájn elválasztó fal illetve egy pihenőtér, panorámára néző nagy üveg felületekkel.

A fürdőszoba és a pihenőtér egy speciális falban futó üveg tolóajtóval lett elválasztva, melyen a pihenőtér felől egy Himalája sófal rendszer, a fürdő felől pedig egy polcrendszer került kialakításra. A himalája sófal a led világítások és a mennyezeten lévő csillagos égbolt biztosítják a privát wellness hangulatos atmoszféráját.

A szauna a falak és a mennyezetek első osztályú Thermowood Tiroli fenyő lambériával lettek borítva, ezzel biztosítva a wellness helységek meleg, rusztikus hangulatát.

A pihenőtérben helyet kapott egy szekrény is, amely két oldalára kavicságyas ládákat helyeztünk el led világítással. Az egyik ilyen ládába rejtettük el a fürdőszobában lévő merülődézsa elektronikáját is.

Kiváló és felkészült asztalos csapatunknak köszönhetően a privát wellness kivitelezése zökkenőmentesen zajlott le! Karácsony előtt egy héttel sikeresen átadásra került az akkor már teljes pompájában tündöklő wellness.

Ügyfelünk nagy örömére, a karácsonyi ünnepeket már meghitt családi körben tölthette, saját wellnessében.

Egyedi szaunaelképzelése van?

Lépjen kapcsolatba szakembereinkkel:

■ Szauna manufaktúra - Dunaszeg

Balázs Csaba - Szauna wellness szakértő

+36 70 362 5830
E-mail: info@szaunagyartas.hu

Online szauna felmérés

■ Illetve elküldheti elérhetőségeit az alábbi táblázat kitöltésével,
majd kollégánk visszahívja Önt!

Küldés

Szauna wellness spa

Ön megálmodja, mi megtervezzük és kivitelezzük akár otthonra akár szállodákba.

 

 

 

 

Himalája sószoba

Belsőépítészeti megoldások himalája só felhasználásával. Gyógyuljon a sóterápiával!

Kültéri szaunaház

Prémium kültéri szaunák, wellness szaunaházak gyártása, építése, kivitelezése.

Belsőépítészet lakberendezés

Exkluzív belsőépítészeti tervezés és kivitelezés egy kézben.

Egyedi szauna építés

Egyedi megoldások igényes ügyfeleinknek a szauna építésben.

hu de en at sk cz
Kosár tartalma
0