Kassa,
Saját wellness otthon

loading
saját wellness
  • saját wellness
  • szauna wellness
  • wellness belsőépítészet
  • wellness tervezés
  • otthoni wellness kivitelezés
  • kombinált szauna kivitelezés
  • privát wellness 3D tervezés
  • saját wellness 2D tervezés

Saját wellness otthon az iSauna Design csapatától!

 

Van már saját wellness tered otthon? Vagy még csak ötleteket gyűjtesz a megvalósításhoz?

Teljesen egyedi megvalósításban gondolkozol, egy olyan házi wellness kivitelezésében mely egyedi, személyre szabott és tükrözi az  egyéniségedet?

Van egy jó hírem! Nem kell tovább keresgélned, böngészned az interneten! A lehető legjobb helyen vagy, hogy megvalósítsd saját wellness projektedet.
Az iSauna Design Kft. házi wellness referenciái között megtalálod a saját irányod. Legyen szó klasszikus, modern vagy minimalista stílusról, nálunk az álmok valóra válnak! 
Tervezőcsapatunk szenvedélyesen és céltudatosan keresi a legújabb trendeket, személyreszabott megoldásokat.  Jól hangzik ugye?
Ha te is azonosúlni tudsz filozófiánkkal akkor nincs más hátra, mint felvenni velünk a kapcsolatot, hogy közösen megtervezzük és kivitelezzük a „ Te " házi wellness teredet.

Íme egy wellness kivitelezés, mely ugyanígy kezdődött. Ügyfelünk mostanra már nap mint nap saját igénye szerint élvezheti az otthoni wellness nyújtotta kényelmet!

Ebben a wellness projektben az ügyfél nem keresett fel személyesen minket. Ennek nagyon egyszerű oka volt, nagy volt a távolság.
Első körben e-mailben vettük fel a kapcsolatot. Ezt követte néhány  videótelefon beszélgetés és e-mail csere.
Személyreszabott ötleteink és referenciáink megtekintése után, ügyfelünk maximálisan megbízott a szakmai hozzáértésünkben. A kommunikáció sikeresen zajlott, így teljeskörűen megértettük ügyfelünk igényeit és elképzeléseit.  

A beszélgetés során kiderült, hogy nagy büszkeséggel tölti el gyönyörű japán stílusú kertje. Ennek a közelségét szerettük volna kihasználni az otthoni wellness kialakításánál.
A wellnessből nyíló panoráma üvegen keresztül közvetlen kilátást kapunk a nagybecsben tartott kertre!  
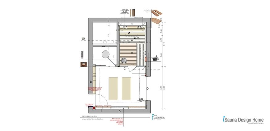
A privát wellness helységben helyet kapott egy zuhanyzó, kombinált szauna és pihenőtér.  Faanyagaink közül az I.osztályú kanadai vörös cédrus lambériára esett a választás.

szauna, a pihenőtér mennyezete és a fali design burkolatok is ebből készültek. Valljuk be a képek láttán, hogy az ügyfél részéről ez egy nagyon jó választás volt!  
A fali design elemek speciális kézi eljárással minimál stílusban készültek, a rejtett hangulat világításért pedig dimmelhető RGB Led fények felelnek.
A pihenőtérben kialakításra került még egy nagy felületű Himalája sófal látványkandallóval és smart tévével.


Ha te is szeretnéd megvalósítani saját wellness teredet otthon, keress minket bizalommal és kezdjük el a közös munkát!

Egyedi szaunaelképzelése van?

Lépjen kapcsolatba szakembereinkkel:

■ Szauna manufaktúra - Dunaszeg

Balázs Csaba - Szauna wellness szakértő

+36 70 362 5830
E-mail: info@szaunagyartas.hu

Online szauna felmérés

■ Illetve elküldheti elérhetőségeit az alábbi táblázat kitöltésével,
majd kollégánk visszahívja Önt!

Küldés

Szauna wellness spa

Ön megálmodja, mi megtervezzük és kivitelezzük akár otthonra akár szállodákba.

 

 

 

 

Himalája sószoba

Belsőépítészeti megoldások himalája só felhasználásával. Gyógyuljon a sóterápiával!

Kültéri szaunaház

Prémium kültéri szaunák, wellness szaunaházak gyártása, építése, kivitelezése.

Belsőépítészet lakberendezés

Exkluzív belsőépítészeti tervezés és kivitelezés egy kézben.

Egyedi szauna építés

Egyedi megoldások igényes ügyfeleinknek a szauna építésben.

hu de en at sk cz
Kosár tartalma
0