loading
Kültéri finn szauna
  • Kültéri finn szauna
  • Kültéri szauna gyártás
  • Kültéri finn szauna építés
  • Kültéri finn szauna gyártás

Egyedi szauna elképzelése van?

Lépjen kapcsolatba szakembereinkkel:

Lévay Bendegúz - Nemzetközi értékesítési vezető

WhatsApp - Free download and install on Windows | Microsoft Store+36 70 362 5597

E-mail: levay.bendeguz@szaunagyartas.hu

Balázs Csaba - Szauna wellness szakértő

+36 70 362 5830
E-mail: info@szaunagyartas.hu

Online szauna felmérés

■ Illetve elküldheti elérhetőségeit az alábbi táblázat kitöltésével,
majd kollégánk visszahívja Önt!

Küldés

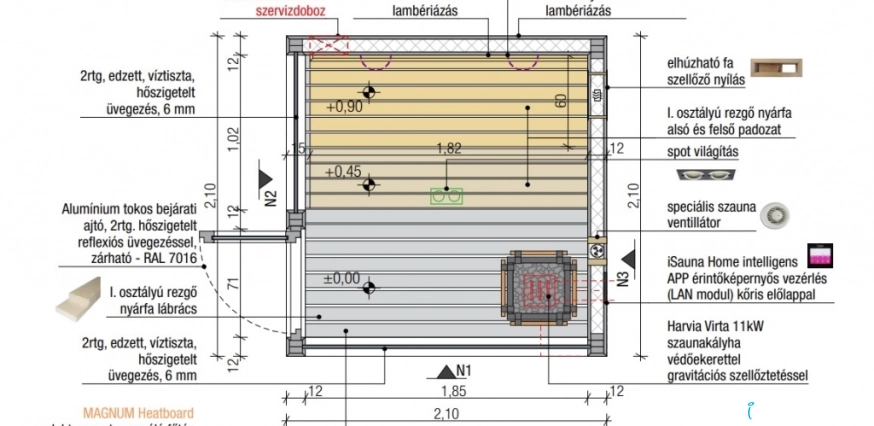
MySauna kültéri finn szauna 

  • Szaunaház mérete: 170 x 170 x 256 cm
  • I. osztályú Thermowood tiroli fenyő Black Angel külső és belső lambéria, további választható faanyagok: natúr thermowood tiroli fenyő, kanadai vöröscédrus, thermowood tiroli fenyő kelo szürke
  • 2 szintes modern, lendő padozati kialakítás - I. osztályú finn rezgő nyárfa padanyag 95 x 28 mm
  • I. osztályú finn rezgő nyárfa lábrács 95 x 28 mm
  • Purenit szauna keret 2 cm vastagságban
  • iSauna TOUCH intelligens érintőképernyős vezérlés ajándék iSauna Home applikációs vezérléssel
  • Harvia Vega szaunakályha 9kW
  • Knauf ekoboard szigetelés hőtükörrel, párazáró fóliával
  • Edzett, hőszigetelt (4+4) víztiszta üvegezés a szauna frontján és jobb oldalán
  • Elhúzható fa szellőztető
  • Mennyezeti LED spot világítás - forgatható, meleg fehér fényű, foglalattal együtt
  • Egyedi korcolt bádogtető
  • Szauna kellék szett (vödör, kanál, homokóra, higrométer)

A szauna már okostelefon szauna vezérléssel együtt is rendelhető! A vezérléshez tartozó okostelefon alkalmazás INGYENESEN letölthető az Apple AppStore és az Android Play Store áruházakból:

 

Szauna wellness spa

Ön megálmodja, mi megtervezzük és kivitelezzük akár otthonra akár szállodákba.

 

 

 

 

Himalája sószoba

Belsőépítészeti megoldások himalája só felhasználásával. Gyógyuljon a sóterápiával!

Kültéri szaunaház

Prémium kültéri szaunák, wellness szaunaházak gyártása, építése, kivitelezése.

Belsőépítészet lakberendezés

Exkluzív belsőépítészeti tervezés és kivitelezés egy kézben.

Egyedi szauna építés

Egyedi megoldások igényes ügyfeleinknek a szauna építésben.

hu de en at sk cz
Kosár tartalma
0